‹ › ×
    • Accueil
    • L'atelier
    • Logement individuel
    • Logement collectif
    • Tertiaire et industrie
    • Établissements publics
    • Projets en développement
    • Contact

    Logement Individuel / Appartement BP1

    Informations du projet

     

    Équipe

    Atelier d'architecture Baobab Mission complète avec Diag et OPC

    Relevé des existants

     

     

    Maître d'ouvrage

    Privé

     

    Localisation

    Bordeaux, Gironde (France)

     

    Année de réalisation

    2004

     

    Stade d'avancement

    Livré

      

    Données du projet

    Surface de plancher : 197m²

    Coût : 117 000€ HT

     

    Crédits

    Photos Atelier d'architecture Baobab

     

    Roberto Giostra

    Restructuration d'un appartement/ Bordeaux

     

    L'appartement se situe dans un immeuble de négociant typique du quartier des Chartrons : immeuble d'habitation constitué de 2 corps de bâtiment avec cour sur voûte et chai de stockage des barriques en profondeur sur l'arrière. Celui-ci a la particularité d'être situé à la limite de la ZAC des Chartrons, la rue André Darbon ayant été percé en lieu et place d'immeubles démolis. Le pignon mitoyen devient alors façade sur la rue nouvelle et l'immeuble se retrouve à l'angle de 2 voies. 

     

    Dans son état d'origine, l'appartement est mal distribué, ne comporte pas de finitions ou qualités patrimoniales (sols en béton nu, fenêtres en acier à simple vitrage, équipement sanitaire rudimentaire) mais bénéficie de dispositions offrant de nombreuses perspectives pour la rénovation.

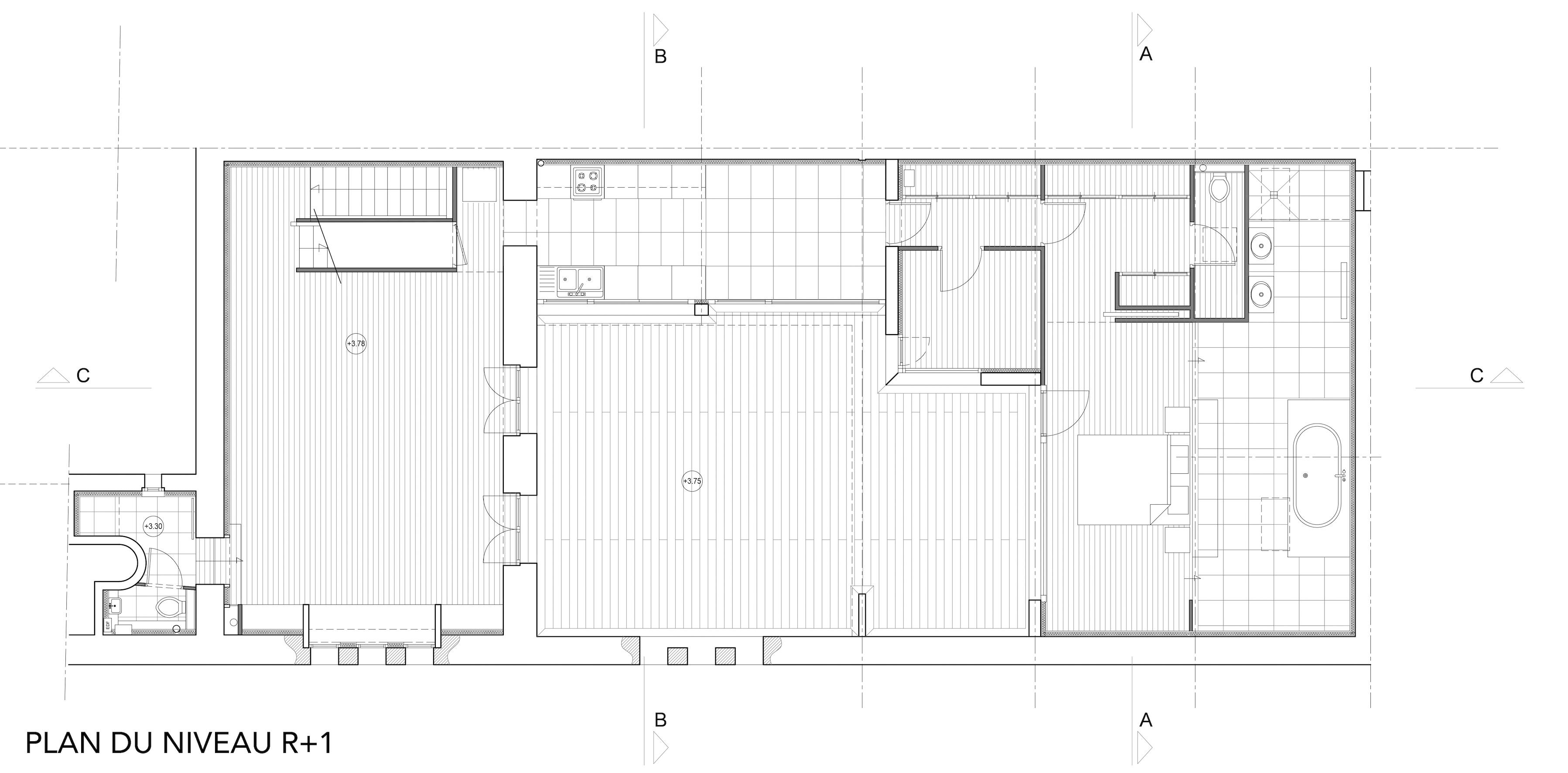
    En effet, il est réparti entre le rez-de-chaussée avec une grande porte de garage rue Poyenne (entrée du chai) et des surfaces importantes communiquant avec une entrée indépendante sur la rue André Darbon, la colonne sur 3 niveaux du 2ème corps de bâtiment d'habitation, et une grande partie du chai au 1er étage (qui a été divisé en longueur et par la création d'un plancher en 2 niveaux).

     

    Ainsi, le rez-de-chaussée a été divisé afin de constituer un vaste garage et un local professionnel sous la voûte en pierre à croisée d'ogive, et un sas permettant d'accéder en toute indépendance à l'appartement depuis la rue André Darbon. Au R+1 se développe l'essentiel de l'habitation, autour d'un patio avec le percement de 3 petites baies carrées donnant une vue sur la rue, en U autour de cette respiration. Au R+2, des chambres et une salle de bain, avec un accès à l'escalier de l'immeuble sur rue.

     

    Les fenêtres ont toutes été remplacées pour améliorer le confort, un plancher chauffant y contribuant également.

     

    Les façades ont été ravalées, le patio reconstruit avec des façades enduites et peintes en rouge pour lui donner beaucoup d'énergie, et des menuiseries en bois exotique réchauffent encore l'ensemble.

     

    Des fenêtres de toit amènent la lumière dans le fond du chai pour éclairer une belle douche dans la chambre principale.

     

    Détails du projet

    Documents graphiques